KRATKI LUCY 20KW Ø 200 TEPLOVODNÍ krbová vložka
Krbová vložka z kvalitní oceli s vodním pláštěm zajišťuje vysokou účinnost a efektivní přenos tepla do topného systému.
Spalovací komora je vyložena TERMOTECEM pro lepší spalování a delší akumulaci tepla, dva deflektory prodlužují dráhu spalin a snižují emise.
Vzduch je přiváděn pouze zvenčí přes 125mm přívod a ovládá se jedním regulátorem.
Trojitý systém přívodu vzduchu včetně vzduchové clony podporuje čisté spalování a udržuje sklo čisté.
Vložka nabízí vysokou bezpečnost díky vzduchotěsné konstrukci a žáruvzdornému sklu do 660 °C, pohodlné používání díky roštu a popelníku, nastavitelným nohám, otočnému vývodu kouřovodu a automatickému dovírání dvířek.
Moderní vzhled doplňuje dekorativní sklo a ergonomická rukojeť.
Jmenovitý výkon (kW): 20
Rozsah topného výkonu (kW): 9,0 - 24,0
Tepelná účinnost (%): 82
Max. provozní tlak (bar): 2
Objem vody (l): 45,5
Teplota spalin (°C): 226
Max. délka polena (cm): 50
Směr otevírání dvířek: Vlevo
Materiál: Ocel
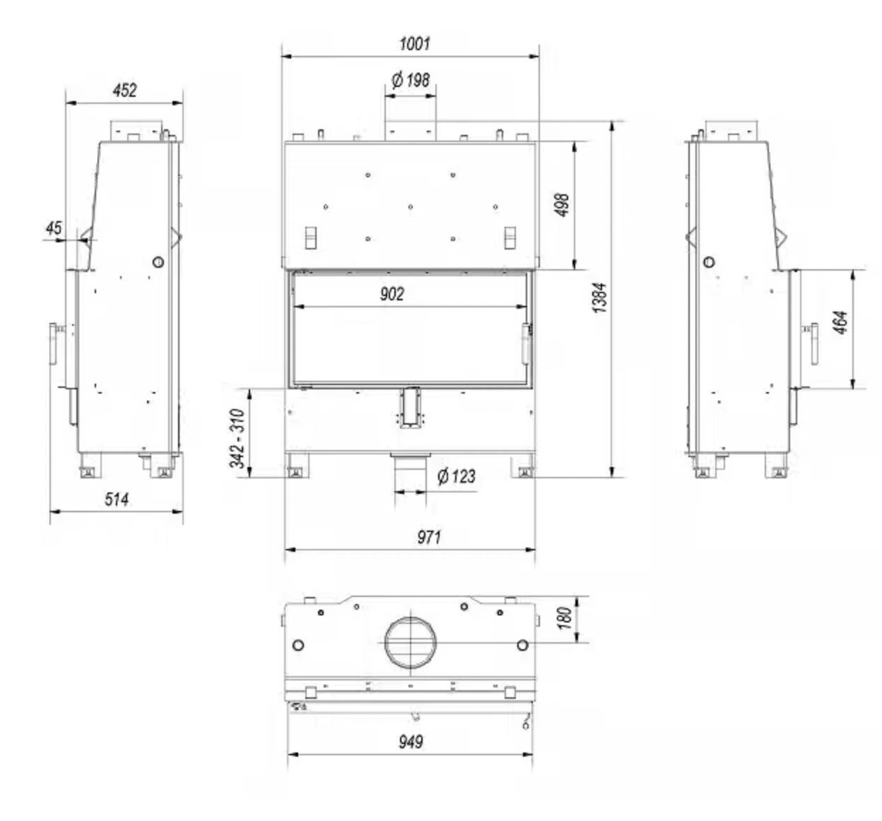
Průměr výstupu spalin (mm): 200
Parametry:
Šířka (cm): 100,1
Výška (cm): 138,4
Hloubka (cm): 40,7
Hmotnost (kg): 293,34









